QBY鋁合金氣動隔膜泵性能簡介
QBY鋁合金氣動隔膜泵既能抽送流動的液體, 又能輸送一些不易流動的介質, 具有自吸泵、潛水泵、屏蔽泵、泥漿泵和雜質泵等輸送機械的許多優點。鋁合金氣動隔膜泵采用壓縮空氣為動力源,對于各種腐蝕性液體,帶顆粒的液體,高粘度、易揮發、易燃、劇毒的液體,均能予以抽光吸盡。
1、不需灌引水, 吸程高達7m, 揚程達50m, 出口壓力≥6kgf/cm3。
2、流動寬蔽,通過性能好,允許通過大顆粒,直徑達10mm抽送泥漿、雜質時,對泵磨損甚微。
3、揚程、流量可通過氣閥開度實現無級調節。(氣壓調節在1-7kg/cm"之間)。
4、該泵無旋轉部件,沒有軸封隔膜將抽送的介質與泵的運動部件,工作介質完全隔開,所輸送的介質不會向外泄漏。所以抽送有毒,易揮發或腐蝕性介質時,不會造成環境污染和危害人身安 全。
5、不必用電,在易燃、易爆場所使用可靠。
6、可以浸沒在介質中工作。
7、使用方便、工作可靠、開停泵只需簡單地打開和關閉氣體閥門,即使由于意外情況而長時間地無介質運行或突然停機,泵也不會因此而損壞,一旦超負荷,泵便會自動停機,具有自我保護性能,當負荷恢復正常以后,又能自動啟動運行。
8、結構簡單、易損件少,該泵結構簡單、安裝、維修方便,泵輸送的介質不會接觸到配氣閥,聯桿等運動部件,不象其他類型的泵因轉子、活塞、齒輪、葉片等部件的磨損而使性能逐步下降。
9、可輸送較粘的液體。(粘度在1萬厘泊以下)
10、本泵無須用油潤滑,即使空轉,對泵也無任何影響。這是該泵一大特點。
鋁合金氣動隔膜泵的特點有哪些
QBY鋁合金氣動隔膜泵工作原理
在泵的兩個對稱工作腔中,各裝有一塊有彈性的隔膜6,聯桿7將兩塊隔膜結成一體,壓縮空氣從泵的進氣接頭1進入配氣閥3后,推動兩個工作腔內的隔膜,驅使聯桿聯接的兩塊隔膜同步運動。與此同時,另一工作腔中的氣體則從其隔膜的背后排出泵外;一旦到達行程終點,配氣機構則自動地將壓縮空氣引入另一工作腔,推動隔膜朝相反方向運動,這樣就形成了兩個隔膜的同步往復運動。每個工作腔中又設置有兩個單向球閥4,隔膜的往復運動,造成工作腔內容積的改變,迫使兩個單向球閥交替地開啟和關閉,從而將液體連續地吸入和排出。
選購氣動隔膜泵產品前需要了解以下知識:
查看更多氣動隔膜泵知識及產品
QBY鋁合金氣動隔膜泵性能參數
| 型號 | 流S m3/h | 揚程 (m) | 出□壓力 kgf/cm2 | 吸程 (m) | 允許通過 顆粒直徑 (mm) | 供氣壓力 kgf/cm2 | 空氣消耗秦 m7min |
| QBY-10 | 0-0.8 | 0~50 | 6 | 5 | I4 | 7 | 0.3 |
| QBY-15 | 0-1 | 0~50 | 6 | 5 | 1 | 7 | 0.3 |
| QBY-25 | 0-2.4 | 0~50 | 6 | 7 | 2.5 | 7 | 0.6 |
| QBY-40 | 0~8 | 0-50 | 6 | 7 | 4.5 | 7 | 0.6 |
| QBY-50 | 0-12 | 0~50 | 6 | 7 | 8 | 7 | 0.9 |
| QBY-65 | 0-16 | 0~50 | 6 | 7 | 8 | 7 | 0.9 |
| QBY-80 | 0~24 | 0~50 | 6 | 7 | 10 | 7 | 1.5 |
| QBY-100 | 0~30 | 0~50 | 6 | 7 | 10 | 7 | 1.5 |
注:空耗即需配空壓機容量。
QBY鋁合金氣動隔膜泵主要用途
1、泵吸花生醬、泡菜、土豆泥、小紅腸、果醬蘋果漿、巧克力等。
2、泵吸油漆、樹膠、顏料。
3、粘合劑和膠水、全部種類可用泵吸取。
4、各種瓦、瓷、磚器及陶器釉漿。
5、油井鉆好后,用泵吸沉積物及灌漿。
6、泵吸各種乳劑和填料。
7、泵吸各種污水。
8、用泵為油輪,駁船清倉吸取倉內污水。
9、啤酒花及發酵粉稀漿、糖漿、糖蜜。
10、泵吸礦井、坑道、隧道、選礦、礦渣中的積水。泵吸水泥灌漿及灰漿。
11、各種橡膠漿。
12、各種磨料、腐蝕劑、石油及泥漿、清洗油垢及一般容器。
13、各種劇毒、易燃、易揮發液體。
14、各種強酸、強堿、強腐蝕液體。
15、各種高溫液體高可耐150℃。
16、作為各種固液分離設備的前級送壓裝置。
QBY鋁合金氣動隔膜泵結構圖

QBY鋁合金氣動隔膜泵特性曲線圖

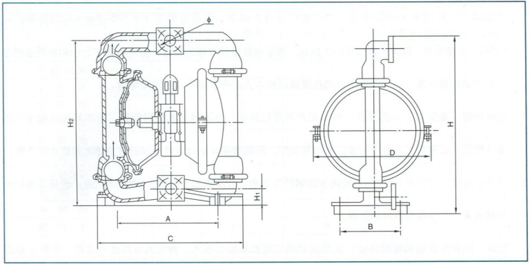
QBY鋁合金氣動隔膜泵安裝尺寸圖

QBY鋁合金氣動隔膜泵安裝尺寸表
| 型號 | A | B | C | D | H | H1 | H2 | Φ | 底腳螺栓 | 泵進口尺寸 | 泵出口尺寸 | 進氣口外徑 | 重量(kg) |
| QBY-10 | 140 | 180 | 150 | 225 | 18 | 200 | Φ8 | 3/8(絲扣活接頭) | 3/8(絲扣活接頭) | 8 | 7 | ||
| QBY-15 | 140 | 180 | 150 | 225 | 18 | 200 | Φ8 | 1/2絲扣活接頭) | 1/2(絲扣活接頭) | 8 | 7 | ||
| QBY-25 | 220 | 170 | 365 | 200 | 480 | 45 | 460 | Φ10 | 1(絲扣活接頭) | 1(絲扣活接頭) | 10 | 20 | |
| QBY-40 | 220 | 170 | 365 | 250 | 480 | 45 | 460 | Φ10 | 11/2(絲扣活接頭) | 1/4(絲扣活接頭) | 10 | 24 | |
| QBY-50 | 340 | 230 | 570 | 340 | 740 | 80 | 700 | 110 | Φ12 | 2(法蘭) | 2(法蘭) | 14 | 50 |
| QBY-65 | 340 | 230 | 570 | 340 | 740 | 80 | 700 | 110 | Φ12 | 2/2(法蘭) | 2/2(法蘭) | 14 | 56 |
| QBY-80 | 360 | 240 | 600 | 450 | 900 | 105 | 860 | 175 | Φ14 | 3(法蘭) | 3(法蘭) | 16 | 70 |
| QBY-100 | 360 | 240 | 600 | 450 | 930 | 105 | 860 | 175 | Φ14 | 4(法蘭) | 4(法蘭} | 16 | 78 |

注:重量以鋁合金為標準,鑄鐵不銹鋼約是鋁合金1.7倍。







